Eco Therm Services Modul termic EcoFlex Slim

Eco Therm Services
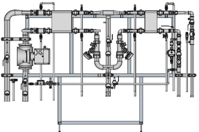
Modul termic DHWE
Cod Produs: C120 Ai nevoie de ajutor? 0740035448 / 0748662133
  • Descriere
  • Review-uri (0)
Informații generale
Modul termic indirect, complet automatizat, special conceput pentru spatiile inguste in scarile de bloc sau camerele tehnice existente in cladirile comerciale sau de birouri.
Asigură separarea hidraulică a rețelelor și un control eficient al preparării agentului termic pentru incalzire si apă caldă menajeră.
Este complet automatizat si autonom în funcționare datorită controler-ului electronic cu compensare climatica si  poate fi monitorizat și controlat de la distanță printr-un sistem SCADA .
Modulul termic este  foarte compact având în vedere puterea termică instalată.

Concept standard
Detalii tehnice  
Sarcini termice constructive ACI/ACC* ≤ 450 kW / ≤ 395 kW
Diametre conducte DN25-DN65
Presiune nominala PN16/25
Debite 2.6 - 24,00 m3/h
Presiune diferentiala maxima 600kPa
Alimentare electrica 230 / 380 VAC
Schimbator de caldura Inox AISI316
Izolatie termica Vata bazaltica cu protectie de aluminiu caserat
Comunicatie la distanta ModBus TCP / BACNet / RS485
*Alte configurații sunt disponibile la comandă
Vezi mai mult Informatii conformitate produs
Daca doresti sa iti exprimi parerea despre acest produs poti adauga un review.

Review-ul a fost trimis cu succes.

Compara produse

Trebuie sa mai adaugi cel putin un produs pentru a compara produse.

A fost adaugat la favorite!

A fost sters din favorite!